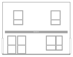
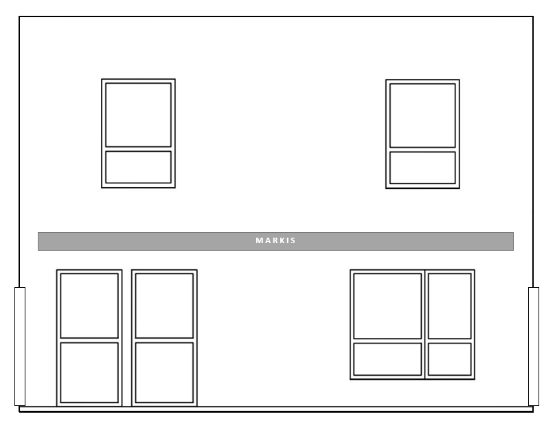
MARKIS
Du får inte sätta upp markis utan styrelsens godkännande. Arbetet ska utföras på fackmannamässigt vis då det innebär ingrepp i fasaden. Det rekommenderade måttet på din markis är 6000×3500 eller 3000×3500. Den mindre markisen ska monteras ovanför fönster, ej i mitten.
Till ovanvåningens fönster, zip screen (vertikalmarkis, ingen arm).
Kulören ska vara samma RAL som befintliga fönster eller liknande RAL 7016 (antracitgrå).
Kontakta styrelsen i Boappa om du önskar montera markis.
Tillåten placering – när du fått styrelsens godkännande:
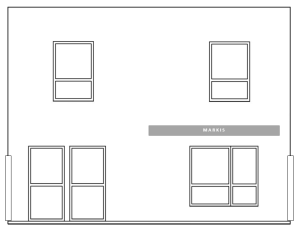
Ej tillåten placering:

